![]() |
![]() |
![]() |
§
40. Расположение прямой относительно плоскостей проекций
Относительно
плоскостей проекций прямая может занимать различное положение. Прямую, не параллельную
ни одной из основных плоскостей проекций (см. рис. 69), называют прямой общего
положения. Прямую, параллельную или перпендикулярную одной из плоскостей проекций,
называют прямой частного положения.
Прямые,
параллельные одной из плоскостей проекций, называют прямыми уровня. Название
их зависит от того, какой плоскости они параллельны. Прямую, параллельную горизонтальной
плоскости проекций, называют горизонталью и обозначают на чертежах h (рис.
70).
Прямую,
параллельную фронтальной плоскости проекций, называют фронталью и обозначают
f (рис.71).


Рис. 70

Рис. 71

Рис.
72
Прямую,
параллельную профильной плоскости проекций, называют профильной и обозначают
р (рис. 72).
У
прямой уровня одна проекция параллельна самой прямой и определяет углы наклона
этой прямой к двум другим плоскостям проекций.
Параллельность
одной из плоскостей проекций определяет расположение двух других проекций прямой
уровня:
h2
|| П2/П1 ;
h3
_|_ П2/П3 ;
f2
|| П2/П1;
f3
_|_ П2/П3 ;
p1
_|_ П2/П1 ;
p2
_|_ П2/П1 ;
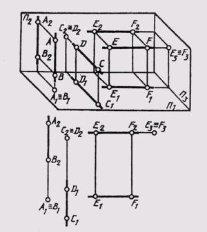
Прямые
h2 и f1 перпендикулярны вертикальным линиям
связи; р1 и р2 располагаются на одной вертикальной
линии связи и при двухпроекционном чертеже должны быть определены двумя точками
прямой р.
Прямые,
перпендикулярные одной из плоскостей проекций, называются проецирующими.
Эти прямые, будучи перпендикулярными одной плоскости проекций, оказываются
параллельными двум другим плоскостям проекций. Поэтому у проецирующих прямых
одна проекция превращается в точку, а две другие проекции параллельны самой
Рис.
73
прямой и совпадают на чертеже с направлением линии связи (рис. 73). Различают горизонтально проецирующие прямые (АВ), фронтально проецирующие прямые (CD) и профильно проецирующие прямые (EF).
![]() |
![]() |
![]() |