![]() |
![]() |
![]() |
§
93. Нанесение размеров на рабочих чертежах деталей
Вопросы
обеспечения рабочего чертежа детали необходимыми размерами продумываются уже
по ходу определения необходимого количества и содержания изображений, а непосредственно
решаются только тогда, когда изображения детали уже выполнены.
Размеры
на рабочем чертеже детали должны быть нанесены так, чтобы обеспечить наименьшую
трудоемкость изготовления детали. Неудачное нанесение размеров может привести
к выполнению лишних технологических операций и повышению себестоимости детали.
Наличие одинаковых размеров у отдельных элементов детали, например, фасок, канавок,
проточек, уменьшает число необходимого режущего и измерительного инструмента,
что приводит к снижению себестоимости изготовления детали.
Общие
вопросы нанесения размеров на чертежах были рассмотрены в § 13. В настоящем
параграфе рассматриваются специальные вопросы, учитывающие требования производства
при изготовлении деталей.
Нанесение
размеров должно соответствовать технологии изготовления детали, т. е. учитывать
последовательность операции-обработки заготовки детали и то оборудование, на
котором деталь может быть изготовлена.
Все
размеры деталей можно разделить на две группы: сопрягаемые и свободные (несопрягаемые).
Сопрягаемые
размеры определяют форму поверхности детали, сопрягаемой с поверхностью
другой детали в изделии, а также положение этих поверхностей в изделии.
Рис.
264
Поверхности
детали, которые не соприкасаются с поверхностями других деталей в изделии, определяются
свободными размерами.
Все
размеры должны наноситься от базовых поверхностей, линий или точек, относительно
которых определяется положение отдельных элементов детали в процессе их изготовления
или эксплуатации в готовом изделии. Различают базы конструкторские, технологические,
измерительные, сборочные, вспомогательные.
Конструкторские
базы определяют положение детали в готовом изделии. На рис. 264 показаны
в качестве конструкторских баз плоскость (рис. 264, а), линия (рис. 264,
б) и точка (рис. 264, в). По отношению к конструкторской базе ориентируются
и другие детали изделия.
Технологические
базы определяют положение детали при обработке.
Измерительная
(главная) база — это база, от которой производится отсчет размеров
при изготовлении и контроле готового изделия (рис. 265). Скрытой измерительной
базой является ось вращения детали.
Вспомогательные
базы помогают отсчитывать размеры второстепенных элементов детали. Вспомогательные
базы должны быть связаны размерами с основной измерительной базой.
В
качестве размерных баз должны выбираться более точно обработанные поверхности.
Они должны быть обработаны в первую очередь.
Размеры
деталей можно наносить от баз тремя способами: цепочкой, координатным и комбинированным
способами.
При
нанесении размеров цепочкой нужно учитывать, чтобы размерная цепь не
была замкнутой. Каждый элемент или ступень детали обрабатывается самостоятельно
(рис. 266, а),

Рис. 265

Рис.
266
т.
е. сначала обрабатывают ступень диаметра d1 на длину l1
от базы А, затем — ступень диаметра d2 от базы В
и т. д. Размер участка диаметром d4 определяется общим габаритным
размером 4. Если необходимо указать размеры всех отдельных участков, то габаритный
(суммарный) размер должен быть указан, как справочный (размер 84 на рис. 265).
Нанесение
размеров цепочкой приводит к суммированию ошибок, появляющихся в процессе изготовления
детали, что приводит к более жестким требованиям при контроле суммарных размеров.
Размеры
цепочкой наносят в тех случаях, когда требуется точно выдержать размеры отдельных
элементов, а не суммарный размер. Цепной способ используется для нанесения размеров
межцентровых расстояний при обработке деталей комплектом режущего инструмента
и т. д.
При
координатном способе размеры наносят от выбранной базы (рис. 266, б). Каждый
размер в этом случае является координатной, определяющей положение элемента
детали относительно базы. Этот способ позволяет обеспечить высокую точность
исполнения размера независимо от исполнения других размеров детали.
Комбинированный
способ нанесения размеров (рис. 266, в) нашел самое широкое применение в практике,
так как сочетает в себе

Рис. 267

Рис.
268
особенности
и цепного, и координатного способов. При этом способе размеры, требующие высокой
точности исполнения, можно отделить от других размеров.
Размеры
между обрабатываемыми и необрабатываемыми поверхностями детали выделяются в
отдельные размерные цепи, которые должны быть связаны между собой одним размером.
При
нанесении размеров на рабочих чертежах деталей необходимо соблюдать следующие
положения.
1.
Чертеж детали должен содержать три группы размеров, необходимых для ее изготовления:
габаритные, межосевые и межцентровые размеры и их расстояния до баз, размеры
отдельных элементов детали.
2.
В ряде случаев проставляют еще и размеры установочные, присоединительные и справочные.
3.
Каждый отличный от других элемент детали должен иметь размеры формы и размеры
положения его относительно баз. На один и тот же элемент каждый размер проставляется
только один раз. При этом для удобства пользования чертежом все размеры, определяющие
элемент детали, должны концентрироваться в одном главном для данного элемента
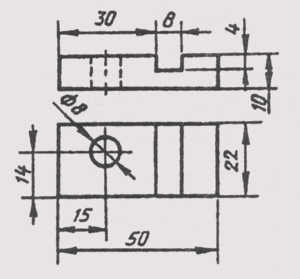
изображении. На рис. 267 размер и координаты отверстия диаметром 8 мм даны на
виде сверху, а размеры и координаты паза — на главном виде.
4.
Нельзя записывать вперемешку размеры наружных и внутренних поверхностей элементов
детали (рис. 268). При этом размерные линии предпочтительнее располагать вне
контура изображения. Пересечение выносных и размерных линий нежелательно, и
категорически воспрещается выносить меньший размер за больший. Простановка размеров
от линии невидимого контура не рекомендуется.
Рис. 269

Рис.
270
5.
Размеры нескольких одинаковых элементов детали наносят один раз с указанием
их количества (рис. 269).
6.
При нанесении размеров одинаковых элементов, равномерно расположенных по окружности,
вместо угловых размеров, координирующих расположение этих элементов по окружности,
можно указывать только их количество (рис. 270).
7.
Размеры симметрично расположенных элементов наносят один раз без указания их
количества (рис. 271), сгруппировав их в одном месте.
8.
Если одинаковые элементы располагаются на разных поверхностях детали и показаны
на разных изображениях, то количество этих элементов записывают отдельно для
каждой поверхности (рис. 272).
9.
На рис. 273 приведены примеры нанесения размеров отверстий в разрезе и на виде,
если отсутствует на чертеже разрез по отверстию.
10.
Одинаковые радиусы округлений или сгибов могут быть записаны без указания их
на изображениях в технических требованиях по типу: «Радиусы скруглений
5 мм»; «Неуказанные радиусы 3 мм»; «Внутренние радиусы
сгибов 12 мм».
11.
У деталей с резьбой длина резьбового участка включает размер фаски и проточки.
Размеры фаски и проточки указываются отдельно внутри размера резьбового участка
(рис. 274).
Рис.
271

Рис. 272

Рис. 273

Рис.
274
12. При нанесении размеров необходимо учитывать требования стандартов на нормальные линейные и угловые размеры, а также ГОСТ 2.307—68 и ГОСТ 2.109—73.
![]() |
![]() |
![]() |